Soluciones a medida

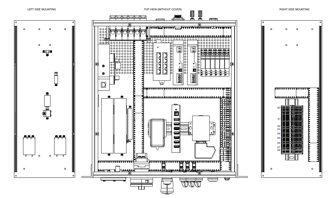
Ingeniería de detalle

imagen de plano de ingeniería de detalle

Realizamos todos los diagramas y planos correspondientes al diseño y documentación del gabinete. También nos dedicamos a corregir diagramas de máquinas existentes y rediseñarlos.

Instalaciones eléctricas

imagen con dibujo de ingeniería de detalle

Realizamos instalaciones eléctricas y reinstalaciones industriales, de máquinas y de equipamiento de instrumentación y control. Logramos eficientizar los cableados con una correcta identificación de elementos.

Programación de PLC

imagen con dibujo de ingeniería de detalle

Programamos diferentes tipos de PLC industriales y microprocesadores para lograr adaptar cualquier sistema a nuevas y modernas tecnologías.